Olive Passive House
The house originated from the idea of subtraction: from a monolithic black box, we excavated openings and outdoor spaces that reveal a warm wood interior and orient the views towards the surrounding landscape.
Tucked into the Catskills woods, the Olive Passive House is a monolith with voids articulately chosen to optimize views, light, and privacy.
The South-facing elevation is carved at an angle towards the East, framing the view of the pond while reducing the solar heat gain in the summer months. This carving movement continues on the ground floor, creating a protected porch to eat, read, and relax.
The interiors of these carvings are sheathed in Siberian Larch, which was chosen for its density and natural water-repellent properties. The warm wood lining contrasts with the black standing-seam metal exterior and alludes to the welcoming interior.
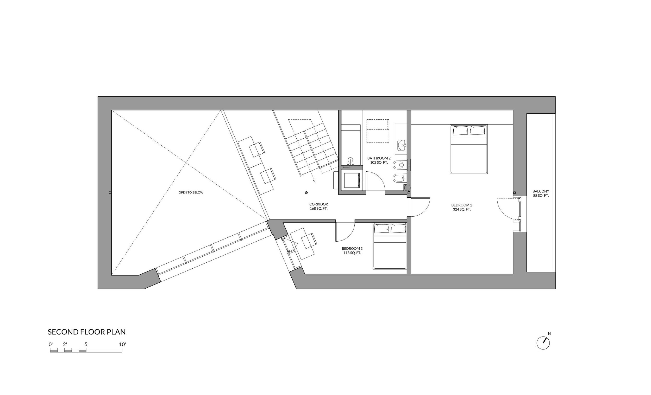
The heart of the home is the double-height gathering space where you will find the kitchen, dining, and living room. Above the kitchen is a loft with a home office that overlooks the social area. The three-bedroom, two-bathroom home has a neutral interior palette consisting of white walls, concrete, and red oak finishes, with washes of color in the bathroom and kitchens.
A PHIUS-certified passive house, this building works exclusively on electric power and consumes almost 80% less than most homes built in the same area up to minimum energy code requirements. The home optimizes energy efficiency through a series of key elements; triple-glazed windows that maximize solar heat during the winter, while the walls and roof are insulated with dense pack cellulose, a material that contains up to 80% recycled paper and fabric. The building envelope is very airtight (0.25ACH), guaranteeing minimum energy loss year round.
Recycled construction waste from the roof's ridge beam is reused as the legs of a robust and elegant dining table.
Olive Passive House
Location
Olivebridge, New York
Size
1,800 sqft
Status
Built (2019)
Despite the grey concrete floor and a small, north-facing window, the ground-floor bathroom feels bright, warm, and welcoming every time of the day.
The house was built using a panelized system fabricated in a shop in nearby Kingston. The panels were brought to the site, and the perimeter walls were assembled in a handful of days,
Team
Architecture: PLANS Architects
Construction: Threshold Builders
Structural Engineering: Crawford and Associates
Mechanical Engineering: Biagio Giuliotta
Passive House Consultant: Owen O’Connor
Millwork: Abstract Quality
Photography: Chaunte Vaughn
Awards
PHIUS AWARDS 2021 - Best Project by A Young Professional
ARCHITIZER AWARDS 2023 - Special Mention Sustainable Private House

